一杯茶论坛全国兼职,深圳蒲友论坛,北京51龙凤茶楼论坛,深圳qm品花阁

快速门首页 > 公司新闻 > 侧挂电机高速卷门安装接线说明

公司新闻

侧挂电机高速卷门安装接线说明

分类:公司新闻 发表时间:2014-08-14 12:00

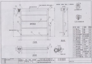
一,侧挂型高速卷门结构配置图

侧挂电机快速卷帘门、高速卷帘门结构图

二,安装门轨、固定门头

1、门框和门洞对齐导轨固定垂直,门框和门洞两边距离相等;

2、门头水平与墙体固定牢固,空心墙需要将墙体穿透连接;

3、电机与门头连接牢固,连接时注意4跟螺丝与减震胶垫用力平均;

4、电控箱离地面1.2米固定.

三,电机和电控箱接线说明

将高速卷门电机马达电源线连接到电控箱接线端子

将电机马达电源线连接到电控箱接线端子,对照接线码进行连接固定(V1、U1、W1、12、0)

四,编码器与电控箱接线说明

先将法兰与门头侧板轴孔居中固定,将编码定位器与法兰固定,磁头螺丝需对准编码器中心点。

将高速卷门编码定位器连接线水晶头插入电箱变频器顶部预留端口

将编码定位器连接线水晶头插入电箱变频器顶部预留端口

注意:磁头螺丝与法兰水平或磁头螺丝凹进2mm左右防止接触摩擦,将编码定位器螺丝固定,编码定位器小圈对磁头。

五,侧挂型超大门编码器与电箱接线说明

先将法兰与门头侧板轴孔居中固定,将编码定位器与法兰固定,磁头螺丝需对准编码器中心点。G与X7定位时短接,上升/下降定位完成后拆除连接线,G与X7定位时调整电控箱面板转换开关,可设全开或半开门功能。

高速卷门编码定位器接线端口

将编码定位器连接线水晶头插入电箱变频器顶部预留端口

注意:磁头螺丝与法兰水平或磁头螺丝凹进2mm左右防止接触摩擦,将编码定位器螺丝固定,编码定位器小圈对磁头。

六,机械行程与电控箱接线说明

高速卷门,快速卷帘门

调整行程内触电定位,确认门体上升开门高度/门体下降关门高度;

将电机马达电源线连接到电控箱接线端子,对照接线码进行连接固定(V1、U1、W1、12、0);

将行程线与电箱接线端子对号码连接X4、X5、G。

万盛相关产品推荐:快速卷门>>快速卷门电机不启动故障排除>>内置电机快速门>>快速卷门配件

广州万盛门业高速卷门安装电话:020-62243188

Contact Us 联系我们

  • 广州市万盛门业有限公司
  • 手机:13660108455
  • 电话:020-62243188
  • 传真:020-62243199
  • 邮箱:wmx@wanshengmen.com
?
电脑版手机版丨技术支持:陆胜科技